您好,欢迎启东市神舟润滑设备制造有限公司!

全国服务热线:0513-83227070

子页面大图广告
启东市神舟润滑设备制造有限公司

地址:启东市惠萍镇西侧工业园区

电话:0513-83227070
    0513-83797070

传真:0513-83223806

手机:13016796801
    13584729328

您当前的位置:首页 >> 干油电气控制箱 >> GDK02型电气控制箱
 
GDK02型电气控制箱

 加入时间:2018-5-21 16:34:08  

一、概述

        本产品适用于 40MPa 双线终端式干油集中润滑系统中,用于控制润滑泵自动运转,向系统Ⅰ管线供送润滑脂,给油完成后自动换向向系统Ⅱ管线供送润滑脂,完成一个润滑周期供脂后自动停止。
        GDK02 型电气控制箱为有监控控制结构,具有持续工作和自动工作二种工作状态,通过箱面的转换开关来切换。持续工作状态,当润滑泵启动后系统周而复始地持续向系统两条主管线供送润滑脂。自动工作状态,当与主机联锁信号接通后,润滑泵按系统设定的间隔时间定时向系统供送润滑脂,完成一个润滑周期后自动停止。

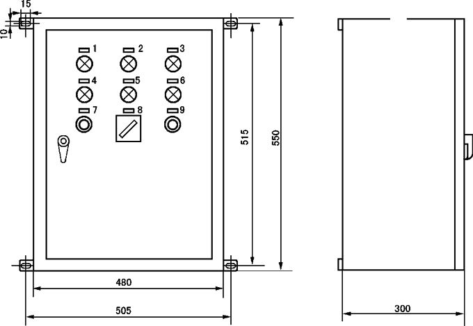
二、外形尺寸

三、标牌符号及文字

序号

标 牌 文 字

序号

标 牌 文 字

序号

标 牌 文 字

1

工作准备指示

4

监控时间超过

7

警报试响

2

线Ⅰ工作状态

5

超负载运转

8

持续 - 停止 - 自动

3

线Ⅱ工作状态

6

贮油筒空

9

消除警报

四、GDK-02 电气控制箱外部接线图

五、使用说明

        1、适用于主电源 AC380V、50Hz。
        2、适用环境温度 -10℃~40℃,湿度 90%。
        3、周围环境无导电的介质(气体、液体)。
        4、垂直安装,其倾斜度不大于 5°。