一、概述
回转窑托轮应平行于窑体中心线安装,窑体为倾斜放置,在自重作用下有下滑的趋势,采用液压推力挡轮液压站,使 窑体按预想的速度(一般约 2~3mm/h)强制上窜和有控制的下滑,从而有效地保证轮带与托轮的均匀接触和磨损,以节 省托轮调整的工作量。
液压挡轮正常上下游动的行程为± 10mm,当上下游动的行程达到 15mm 时,应发出报警讯号,当上下游动达到极限行 程(± 30mm)时,应立即停止对主电机供电,允许通过调整限位开关的位置对上述控制行程作± 2mm 的少量变动。
二、技术参数
1、工作压力:4~10MPa
2、公称流量:1.14L/min
3、过滤器精度:20 μ m
4、油箱容积:0.11.png)
5、电加热器功率:AC220V,1kw
6、电机功率:0.75kw
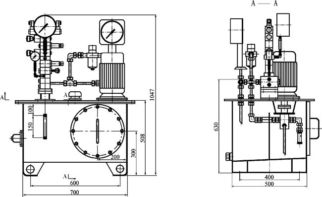
三、外形尺寸

四、工作原理
SZ-C 稀油润滑装置是控制回转窑液压挡轮动作的动力装置,其工作原理如下图所示: 当窑体下移偏离零位(即装有行程开关挡轮中线与轮带中线重合位置)25mm 时,行程开关箱中一触点动作,油泵4起动,换向阀 16 的电磁感应圈 A 接通,压力油通过换向阀左位经调速阀 15 进入液压缸,这时液压缸活塞在压力油作 用下,推动挡轮迫使窑体向上移动。
当窑体上移到上限值时,行程开关箱中一触点动作,油泵 4 停止,换向阀 16 的电磁感应圈 B 接通,液压缸中的油经调速阀 13 和换向阀 16 右位回油箱,窑体靠自重下移,下移到下限值时,行程开关箱中一触点动作,换向阀 16 的电 磁感应圈 B 断开,油泵 4 起动,换向阀 16 电磁感应圈 A 接通,液压缸活塞在压力油作用下,推动挡轮迫使窑体向上移动。
若窑体在异常情况下向上或向下到极限位置时,行程开关箱中触点动作,发出报警:并且电磁换向阀换向

SZ-C 稀油润滑装置原理图
|
序 号
|
名 称 规 格
|
数 量
|
备 注
|
|
1
|
油箱
|
1
|
|
|
2
|
电加热器 SRY2-220/1
|
1
|
电压 220V 功率 1 K W
|
|
3
|
电接点温度计 WTZ-288
|
1
|
|
|
4
|
变量泵
|
1
|
|
|
5
|
电机 Y90S-6B5 (V1)
|
1
|
转速 910r/min 功率 0.75KW
|
|
6
|
单向阀 DIF-L10H1
|
2
|
开启压力 0.035MPa
|
|
7
|
滤油器 ZU-H10 × 20S
|
1
|
|
|
8
|
单联底板块
|
1
|
|
|
9
|
测压垫块
|
1
|
|
|
10
|
压力表开关 3K-F6D
|
1
|
|
|
11
|
溢流阀 Y-Fc6D-P/O
|
1
|
调定压力:1 0 M P a
|
|
12
|
测点块 C-F6D-A
|
1
|
|
|
13
|
调速阀
|
1
|
|
|
14
|
溢流阀
|
1
|
调定压力:1 4 M P a
|
|
15
|
调速阀
|
1
|
|
|
16
|
电磁换向阀
|
1
|
|
|
17
|
压力表 YN-60
|
1
|
范围:0 ~25MPa
|
|
18
|
吸油过滤器 WU-16 × 80-J
|
1
|
|
|
19
|
单向阀 D1F-L10H3
|
1
|
开启压力 0.35MPa
|
|
20
|
卡套式截止阀 J93W-160P
|
1
|
配和外径14mm 压力:16MPa
|
|
21
|
电接点压力表 YX-150
|
1
|
测压范围:0 ~25MPa
|
|
22
|
截止阀
|
2
|
|
|