您好,欢迎启东市神舟润滑设备制造有限公司!

全国服务热线:0513-83227070

子页面大图广告
启东市神舟润滑设备制造有限公司

地址:启东市惠萍镇西侧工业园区

电话:0513-83227070
    0513-83797070

传真:0513-83223806

手机:13016796801
    13584729328

您当前的位置:首页 >> 油气润滑 >> 递进式油气润滑系统
 
递进式油气润滑系统

 加入时间:2018-5-21 9:23:47  

一、概述

  递进式油气润滑装置由油气站、PLC控制柜、VM主分配器、YQ-FP油气混合器组成。系统工作时,气动泵或电动泵把油输入VM主分配器,主分配器把油分成若干部分后输入YQ-FP油气混合器,通过混合器使压缩空气将油送到润滑部位。

二、技术参数

型  号

公称压力

MPa

空气压力

MPa

油箱容积

L

空压:油压

供油量

电加热器

JYQ-A

10

0.3-0.5

450

1:25

6mL/行程

-

JYQ-B

10

0.3-0.5

450

-

2.1L/min

2×3kw

 

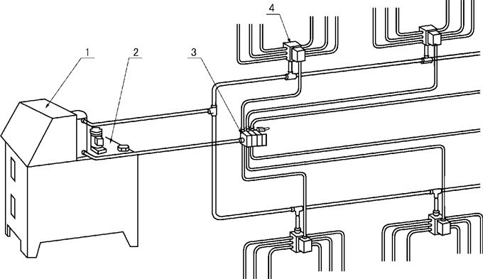
1、PLC 控制柜,2、油气站 3、VM 主分配器 4、YQ-FP 油气混合器

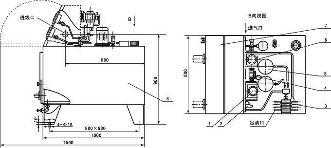
三、外形尺寸

1、电控柜 2、空气过滤器 3、二位二通电磁换向阀 4、二位五通电磁换向阀
5 、空气减压阀 6 、压力控制器 7 、分配器 8 、气动泵 9 、油箱

1、 空气减压阀 2、压力控制器 3、分配器 4、电磁阀
5 、电动泵 6 、空气过滤器 7 、电控柜 8 、油箱