您好,欢迎启东市神舟润滑设备制造有限公司!

全国服务热线:0513-83227070

子页面大图广告
启东市神舟润滑设备制造有限公司

地址:启东市惠萍镇西侧工业园区

电话:0513-83227070
    0513-83797070

传真:0513-83223806

手机:13016796801
    13584729328

您当前的位置:首页 >> 油气润滑 >> YQ-Ⅰ型保压式油气润滑系统
 
YQ-Ⅰ型保压式油气润滑系统

 加入时间:2018-5-21 9:38:29  

一、概述

  YQ-Ⅰ型保压式油气润滑系统由油气站、空气操作仪表盘和多个油气操作盘组成,油气操作盘上装有油气混合器、电磁换向阀、节流阀等。油站将润滑油打入各并联支路,主管路中保持一定压力,每条支路可通过电磁阀控制其通断,进入油气混合器的油被定量分配,然后在不间断空气的作用下进入润滑点,对其进行润滑。系统的特点是各支路可相互独立工作,对需分区分时润滑的场合尤为适用。

二、技术参数

 

型  号

公称压力

MPa

空气压力

MPa

油箱容积

L

供油量

mL/min

电   机

YQ-Ⅰ

4

0.3-0.5

250

500

2×0.25KW 380V 50Hz

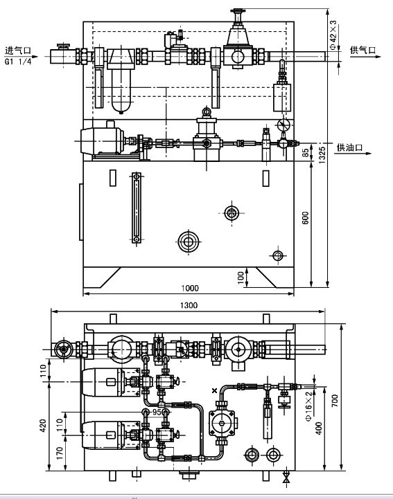
三、油气站外形尺寸

四、油气操作盘

  油气操作盘由油气混合块、电磁换向阀、分线盒等主要元 件组成,油气混合块生成油气输入到润滑点,电磁换向阀控制 该油路的通断。

五、空气操作盘

  空气操作盘主要由过滤器、减压阀等空气处理元件组成, 其作用是将一定压力的空气输入到油气混合块。